場地
促銷
目的地
Discover
豪華
新
場地清單
場地清單
場地清單
場地清單
設置
設置
登記
登錄
返回 Paradisus Playa del Carmen | Paradisus La Perla Adults Only
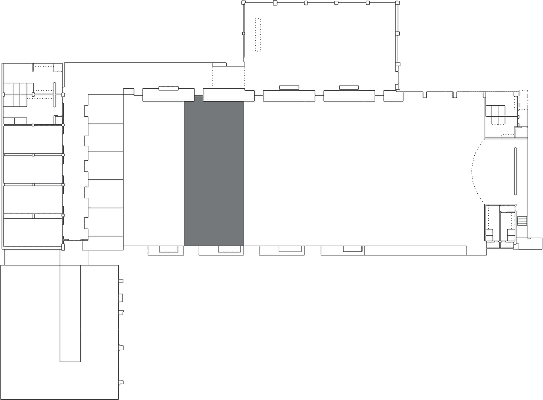
Cypress II
上一個會議室
下一個會議室
會議室詳細資訊
下載平面圖
房間大小
2,525 平方英尺
天花板高度
21.4 英尺
會議室大小
-
最大名額
180
會議室容納名額
宴會圓桌
120
會議室
60
教室
100
雞尾酒圓桌
180
空心正方形
80
劇院
150
U 形
50
其他
輪椅無障礙
網際網路
Ready to send your inquiry?
Ready to send your inquiry?
選擇場地
Ready to send your inquiry?
選擇場地
促銷
Luxury Events in Mexico
US$295.00 - US$380.00
2025/04/01 - 2026/12/21
促銷價格
領取促銷