- Hyatt Regency Bangkok Sukhumvit
Hyatt Regency Bangkok Sukhumvit





Om oss
Hyatt Regency Bangkok Sukhumvit is a vibrant place for guests to share, socialize and collaborate. As an ISO20121 sustainable certified hotel, we are committed to environmental responsibility while delivering exceptional experiences. Conveniently located on Sukhumvit Road with direct access to BTS skytrain Nana Station, the hotel offers full facilities and amenities such as a fitness center, swimming pool, outdoor spaces and Regency Club Lounge to provide energizing experiences for guests visiting Bangkok, whether for business or leisure. Free wireless internet is available, allowing all registered guests to stay connected. Enjoy distinguished dining experiences including our Market Café, The Lobby Lounge, rooftop Spectrum Lounge & Bar, and the spacious venue and meeting facilities.
Anläggningsinformation
Branschbetyg
Priser
Anläggningens höjdpunkter
Bekvämligheter
- Bagageförvaring
- Concierge-tjänster
- Internet
- Rumsservice
- Tvättservice
- Utsikt (urban)
- Catering på plats
- Handikappanpassat
- Restaurang på plats
- AV-funktioner
- Företagscenter
- Videokonferens
- VIP-tjänster
- Gym
- Utomhuspool
- Buss
- Taxi
- Tunnelbana
- AV-personal på plats
- AV-utrustning
- Höghastighetsinternet (30 Mbps)
- Bagageförvaring
- Concierge-tjänster
- Internet
- Rumsservice
- Tvättservice
- Utsikt (urban)
- Catering på plats
- Handikappanpassat
- Restaurang på plats
- AV-funktioner
- Företagscenter
- Videokonferens
- VIP-tjänster
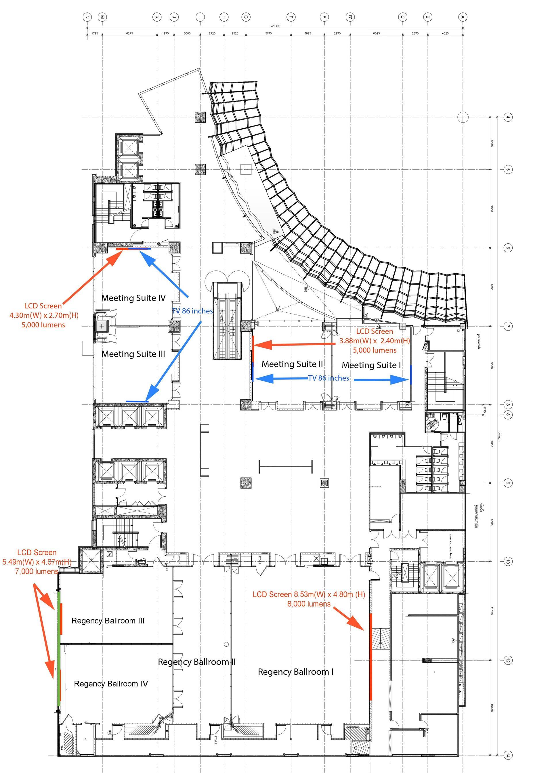
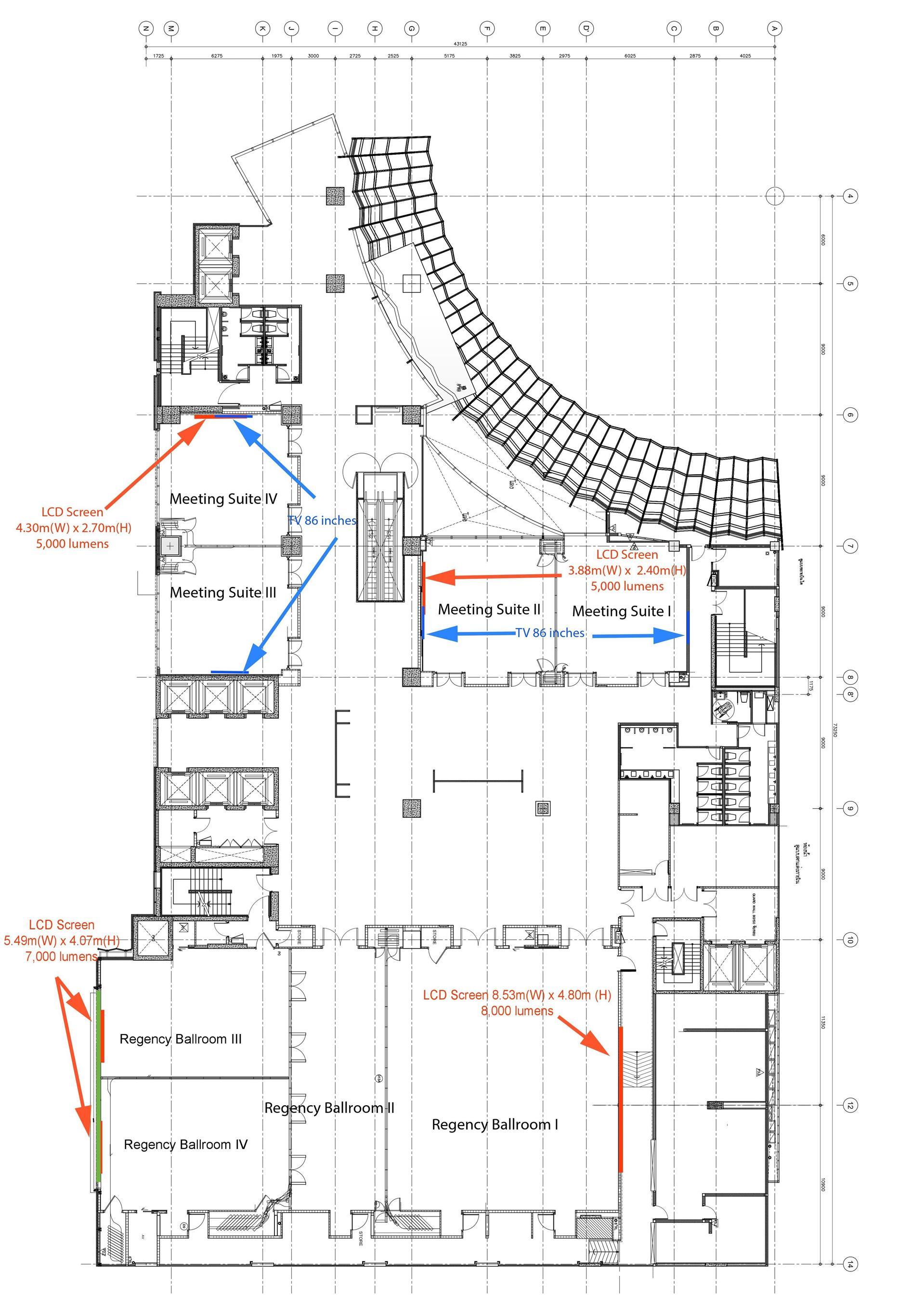
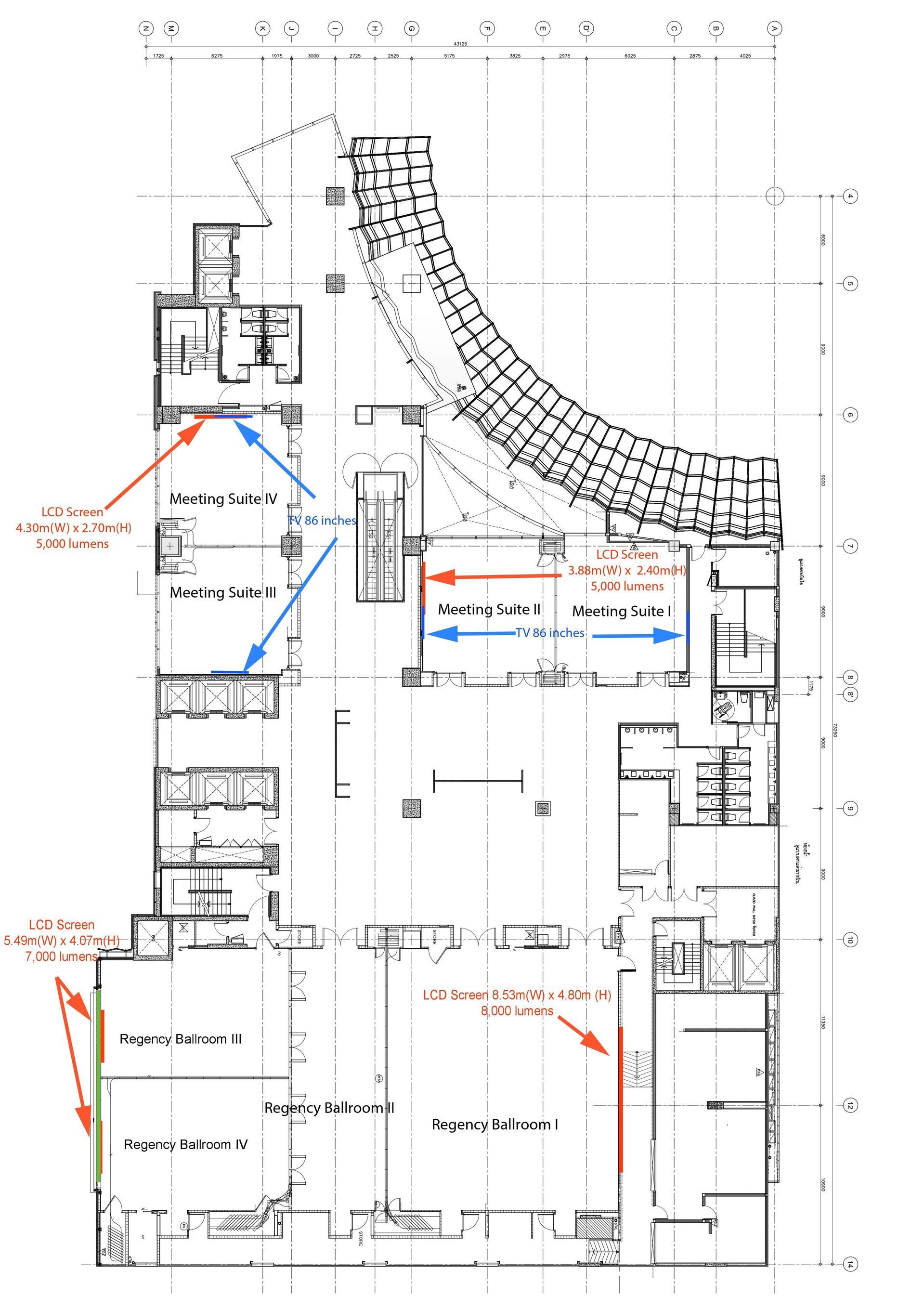
Mötesrum
Mötesrum
Planlösningar

Mötesutrymme
Namn | Storlek på rum | Takhöjd | Max kapacitet | U-formad | Runda bankettbord | Runda cocktailbord | Teater | Klassrum | Styrelserum | Halvmånar (cabaret) | Fyrkant |
|---|---|---|---|---|---|---|---|---|---|---|---|
6 641,3 kvadratfot 115,5 x 60,7 kv. fot | 19,7 fot | 850 | 110 | 400 | 700 | 850 | 280 | 120 | 500 | 210 | |
3 239,9 kvadratfot 53,1 x 60,7 kv. fot | 19,7 fot | 450 | 55 | 240 | 350 | 450 | 210 | 100 | 240 | 100 | |
1 291,7 kvadratfot 21,3 x 60,7 kv. fot | 19,7 fot | 100 | 25 | 80 | 80 | 100 | 90 | 45 | 80 | 45 | |
1 248,6 kvadratfot 41,0 x 30,2 kv. fot | 19,7 fot | 150 | 15 | 80 | 135 | 150 | 63 | 30 | 80 | 30 | |
1 280,9 kvadratfot 41,0 x 30,5 kv. fot | 19,7 fot | 150 | 18 | 80 | 135 | 150 | 70 | 35 | 80 | 35 | |
2 529,5 kvadratfot 41,0 x 60,7 kv. fot | 19,7 fot | 320 | 35 | 160 | 300 | 320 | 140 | 70 | 160 | 70 | |
3 412,2 kvadratfot 62,3 x 60,7 kv. fot | 19,7 fot | 400 | 60 | 270 | 350 | 400 | 230 | 110 | 270 | 110 | |
4 230,2 kvadratfot 78,7 x 53,5 kv. fot | 10,5 fot | 350 | - | - | 350 | - | - | - | - | - | |
861,1 kvadratfot 30,2 x 28,5 kv. fot | 9,2 fot | 84 | 18 | 60 | 75 | 84 | 36 | 24 | 48 | 24 |
Gästrum
Plats
Vägbeskrivning
Lokala sevärdheter
























Nearby vendors












Medlemsorganisationer (1)
Mer information
Säkerhetsinformation
Additional details
The 273-room hotel will feature well-appointed standard guestroom, spacious deluxe room, regency club room and 21 suites including a Presidential Suite. Centrally situated on Sukhumvit Road with direct sky-bridge access to Nana BTS station, the hotel continues the Legacy of Nana to provide energizing experiences for guests visiting the vibrant Thai capital, whether for business or leisure.
Webblänkar
Följ oss
Vanliga frågor för Hyatt Regency Bangkok Sukhumvit
Utforska vanliga frågor från Hyatt Regency Bangkok Sukhumvit angående hälsa och säkerhet, hållbarhet och mångfald och inkludering.
Hållbara metoder
Mångfald och inkludering
Hälsa och säkerhet
Please explain, if applicable, the carbon offsetting options you offer to corporations.
Please contact your Hyatt corporate account manager to discuss opportunities at the corporate level.
Please provide, if applicable, an e-mail address for a contact who can address any follow up questions relating to sustainability and social impact goals and initiatives.
jessica.schultz@hyatt.com
Has your hotel taken steps to reduce single-use plastics, such as removing plastic straws (except upon request for guests with disabilities), stirrers and cotton buds? If yes, please provide detail as to the steps you have taken to reduce single use plastics?
Yes, Offering straws only upon request, replacing glass bottle of water in guestroom and meeting room, promoting the use of digital key entry and providing digital signage for an event.
Does your hotel generate (onsite) or purchase (offsite) renewable energy (beyond your utility's standard offerings)? If yes, please describe your practices for generating or purchasing renewable energy.
No
Does your hotel engage in activities to protect & restore the natural environment in which it is located (i.e. trees planted, coral reef restored, etc.)?
Yes
Will your hotel be imposing any additional fees for cleaning services? If yes, please specify those fees.
No
Are specific cleaning/disinfection routines in place for pillows, duvets and their covers, headboard, bathrobe etc.? If yes, please describe.
Yes, Changed and disinfected after each check out
Please include a link to your public report on community impact if applicable.
https://about.hyatt.com/en/world-of-care/policies-statements-reporting.html
Please provide any other comments you wish to make regarding your efforts/initiatives to obtain certification in these programs.
Not minoirity owned
Please provide, if applicable, an e-mail address for a contact who can address any follow up questions relating to diversity, equity, and inclusion.
tyronne.stoudemire@hyatt.com
Rapportera ett problem med den här anläggningsprofilen i Cvent Supplier Network.


















