Sundance Film Festival

客室詳細
75インチのフラットスクリーンテレビが設置され、自然光が差し込みます。

部屋の大きさ
850 平方フィート
天井高さ
8 フィート
客室の広さ
27 x 32 平方フィート
最大定員
60
会議室定員

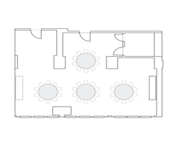
円卓
40

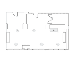
役員会型
25

スクール形式
30

カクテル形式
60

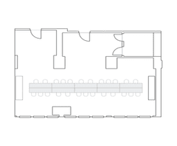
ロの字型
30

シアター型
56

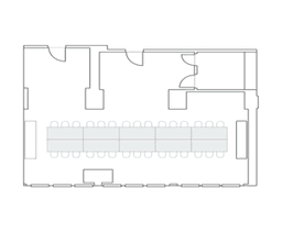
U 字型
27
ミーティングルームの設備
テレビ
その他
車椅子利用可
インターネットアクセス
スペース(プライベート)
Ready to send your inquiry?
Ready to send your inquiry?